原理、特點
WFS22系列擋板式流量開關是我公司專業從事流量的研究人員在分析目前市場上流量開關的缺點開發的一種全新結構的流量開關,它遵循簡單可靠的設計理念,從結構上大大提高了流量開關的可靠性,非傳統靶式流量開關所能比擬。機械式流量開關,內置微動觸發開關。
極小的壓力損失,良好的重復性,抗污能力強。機械部分與電氣部分安全隔離。產品不含容易發生故障的波紋管,電氣部件不直接與溫差大的金屬部件接觸,不存在電氣部件產生冷凝水導致銹蝕的問題,它具有多種類型可供客戶選擇以適應不同的應用場合。使用進口微動開關作為電氣動作部件,通過的電流大,徹底避免了磁敏開關使用不當易損壞的問題,是中央空調和工業流體控制的首選流量保護產品。
應用
氣液兩用型,可廣泛應用于工業自動化/機械設備/空氣壓縮工業/制冷及空調領域,工業場合具體應用在水冷焊機、激光設備冷卻系統、真空鍍膜機、電爐、多晶硅鑄錠爐等。水流開關磁體不在流動的水道里,可用于污水系統中且能正常工作。
技術參數
適用介質

應用案例
△WFS22流量開關保護值的調整方法
△WFS22水流開關在水環/地源熱泵系統中流量保護的應用
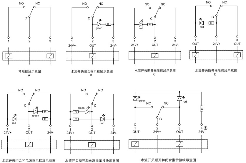
接線示意圖(DIN 43650接頭):

接線示意圖(普通接頭):

產品參數






官方公眾號
官方小程序